
Na krytu si můžete vyzkoušet základní modelovací prvky, které se používají při tvorbě plechových dílů. Zkuste nejprve sami připravit model podle výkresové dokumentace.
Nebudete-li si při modelování vědět rady, pomůže vám návod, který najdete s odstupem několika dnů opět zde na našem webu. Můžete si poté porovnat váš samostatný postup s tím námi doporučeným.
Náhled na celý výkres:
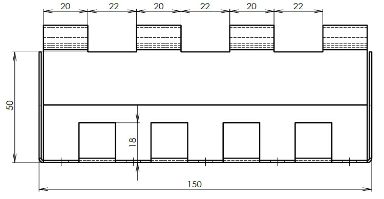
Detailní pohled na nárys:
Detailní pohled na půdorys:
Detailní pohled na bokorys:
Znázornění rozvinutého pohledu a popis ohybů:






Komentáře k článku (1)
Přidávat komentáře k článku mohou pouze přihlášení uživatelé.
Chcete-li okomentovat tento článek, přihlaste se nebo se zaregistrujte.